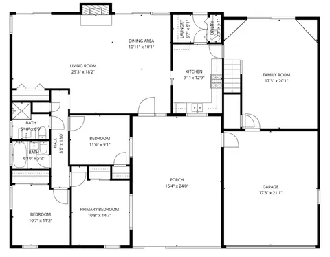
DISCOVER THIS DELIGHTFUL 4-bedroom, 2-bathroom POOL HOME situated at the end of a quiet cul-de-sac in Buena Park's DESIRABLE Flower Tract neighborhood. This lovely SINGLE-STORY home offers a fantastic floor plan designed for comfort and functionality. Enjoy a spacious living area with stone wall accents and a cozy fireplace. The UPDATED OPEN-CONCEPT KITCHEN with glass tile backsplash and recessed lighting flows into a FAMILY ROOM and DINING AREA, leading out to a COVERED PATIO and FENCED-IN GROUND POOL - perfect for entertaining or unwinding. The primary suite features an en-suite bath, while three additional bedrooms offer space for family, guests, or a home office. Recent UPGRADES include new Luxury Vinyl Plank flooring, Recessed Lighting, and fresh paint, enhancing the home's bright and modern feel. Additional perks include PAID-OFF SOLAR PANELS, a 2-car garage and a large driveway, a front-yard sprinkler system, and NO HOA or Mello Roos! Conveniently located near Knott's Berry Farm, ABC Unified Schools, shopping, parks, and transit. Don't miss the opportunity to see all that this home has to offer. Please schedule a showing today!
OC25023438
Residential - Single Family, 1 Story
4
2 Full
1958
Orange
0.1391
Acres
Public Water
1
Public Sewer
Loading...
The scores below measure the walkability of the address, access to public transit of the area and the convenience of using a bike on a scale of 1-100
Walk Score
Transit Score
Bike Score
Loading...
Loading...
